Menü Home Information Projekte Quartier Grossraum

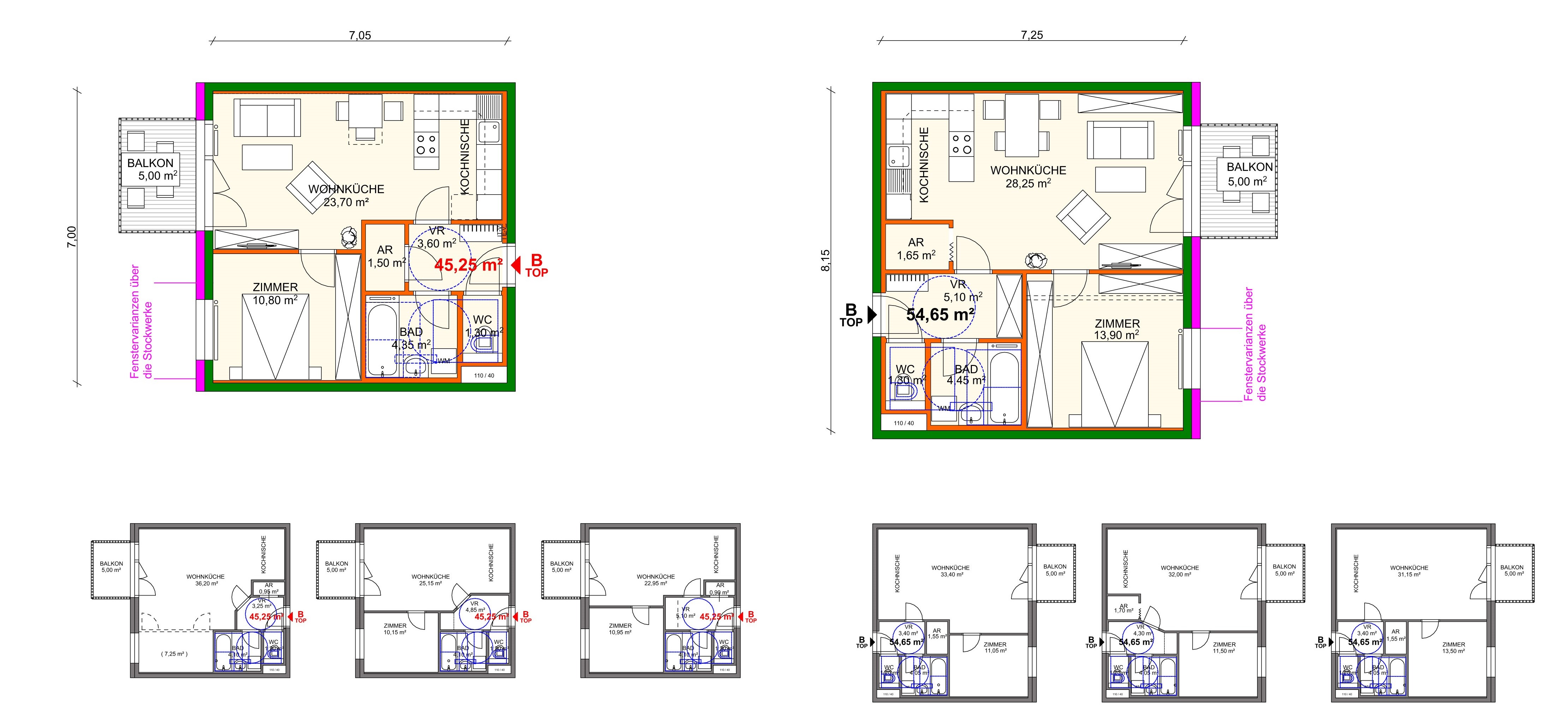
TYP SMART B

TYP "NORMAL" B

Rendering
Seite 1 Seite 2 Seite 3 Seite 4
 
Seite 5 Seite 6